Planung:
2019
Ausführung:
2021

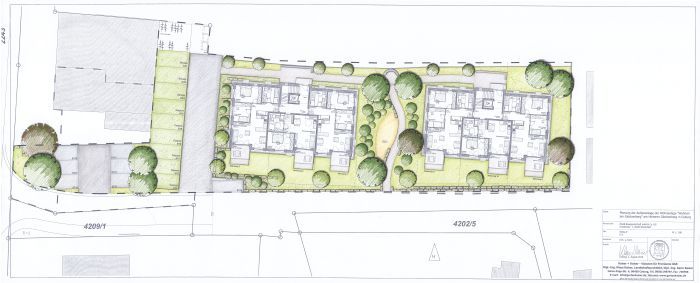
Außenanlage zu einer Eigentums-Wohnanlage der gehobenen Klasse, bestehend aus 2 Häusern.
Zwischen den Häusern ein kleiner Spielplatz.
Link zur RAAB Bauggesellschaft
Vorwahl: 09561 + Tel. 99797 (Klaus) + 511620 (Karin) + Fax 99898 + Mail: info@gartenkaiser.de
Adresse: Julius-Popp-Str. 4, 96450 Coburg, Deutschland
© Klaus und Karin Kaiser | Telefon: +49 (0)95 61 / 9 97 97 | info(at)gartenkaiser.de